OLEODAIMIEL Refinery Construction
FECHA:
LOCALIDAD:
ESTADO:
Finalizado
DETALLES TÉCNICOS:
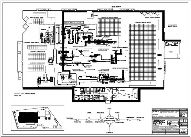
Construction and facilities project for an olive oil processing and refining industry in the town of Daimiel (Ciudad Real).
Execution and management of the construction and facilities according to turnkey modality.
Processing and obtaining of licenses and subsidies.
Surface area: 10,000.00 m2.
ALCANCE DEL SERVICIO:
The Faiges Group set up an oil refinery and bottling industry in Daimiel. Their problem was a very short time to have the industry in operation.
ZADECON prepared all the civil works and installation projects and, in parallel, started the execution of the work, bringing definition and execution in line, thus saving 6 months for the property.
In order to make the production process viable, a structure with 55-meter spans without pillars and 12-meter bays was designed and built.
The following specific projects were developed:
Environmental Impact Study
High Voltage Electrical Installation and Transformer Substations Project
Low Voltage Electrical Installation Project
Fire Protection Installation Project
Compressed Air Installation Project
Gas Installation Project
Construction, Civil Works and Structures Project
Opening and Activity Project
ZADECON carried out all the procedures with the organisms: City Hall, Delegation of Environment, Delegation of Agriculture and Delegation of Industry.
PRECIO:




×