Business School

FECHA:

LOCALIDAD:

ESTADO:

Finalizado

DETALLES TÉCNICOS:

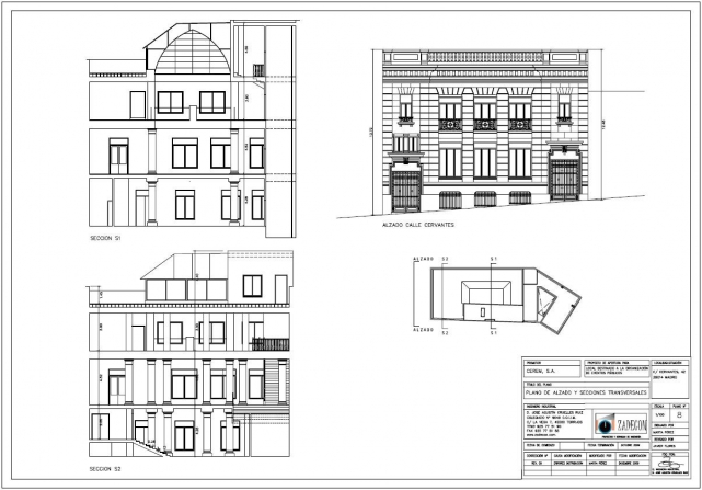
Project for the opening and refurbishment of a small building located at Cervantes St. in Madrid for the installation of a Training Center and Business School.
Preparation of Special Plans and Urban Planning Consultations.
Elaboration of a Fire Protection Installation Project for a three-story architecturally protected building.
Surface of the Activity: 2,400 m2.

ALCANCE DEL SERVICIO:

The client has a mansion, a historic building, in the center of Madrid and his project was to legalize it as a training and events center. Given the uniqueness of the property, it is subject to specific regulations which prevents and makes it impossible a priori the implementation of any activity in it. It is through ZADECON's management by means of the elaboration of the opportune documents and following the necessary traceability, by means of which the necessary permissions are obtained for the installation of the activity that the Company owner of the property needs for the legalization of the same before the Competent Organisms.

PRECIO:

×

RELLENA TUS DATOS PARA VER EL PRECIO DETALLADO:

Scroll to Top